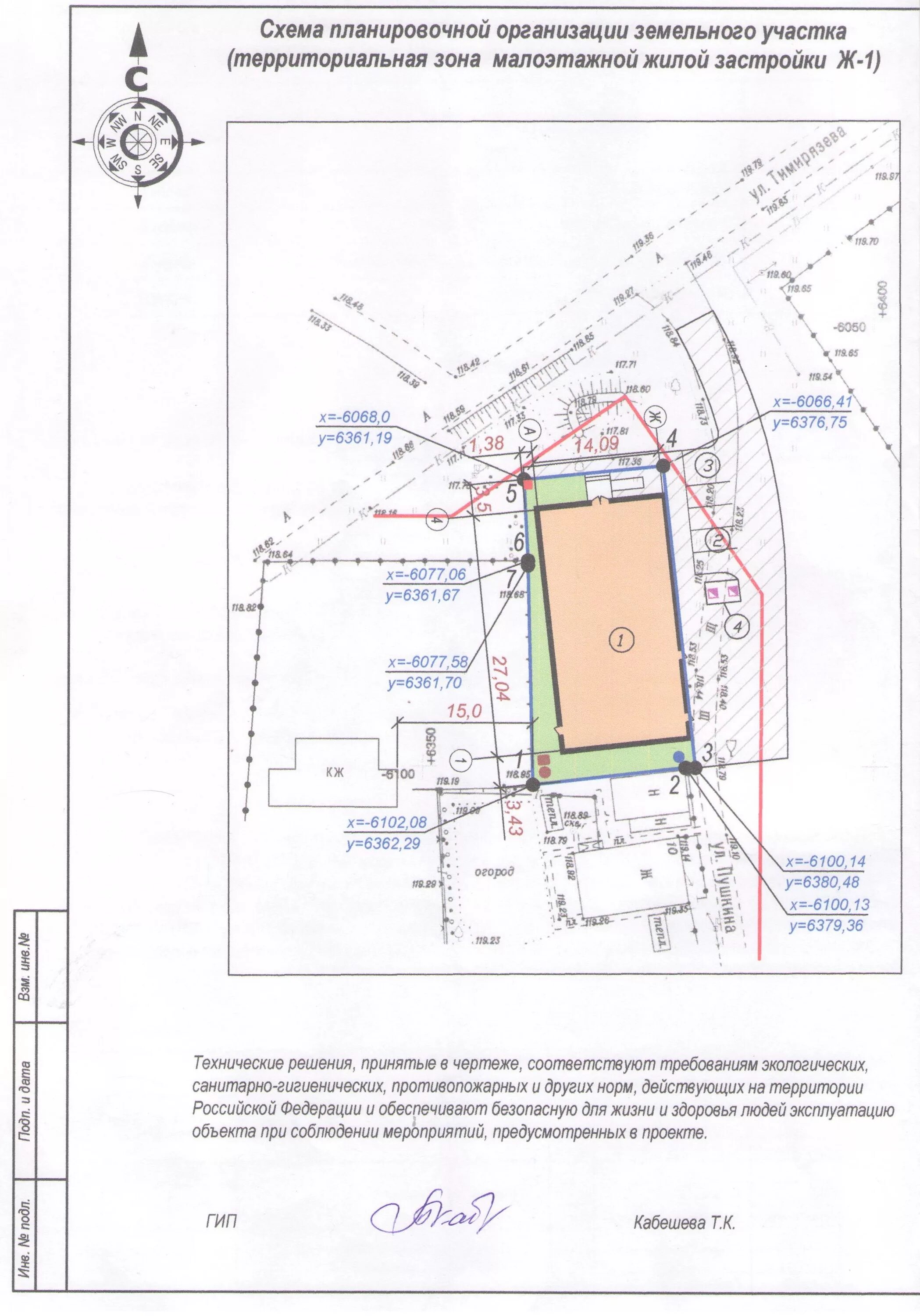
Обоснование отклонения от предельных параметров