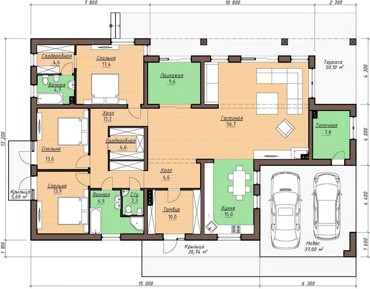
Дом 5 комнат 1 этаж