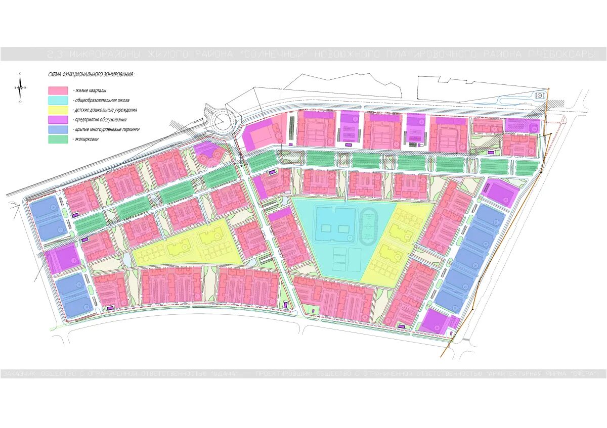
Зонирование чебоксары