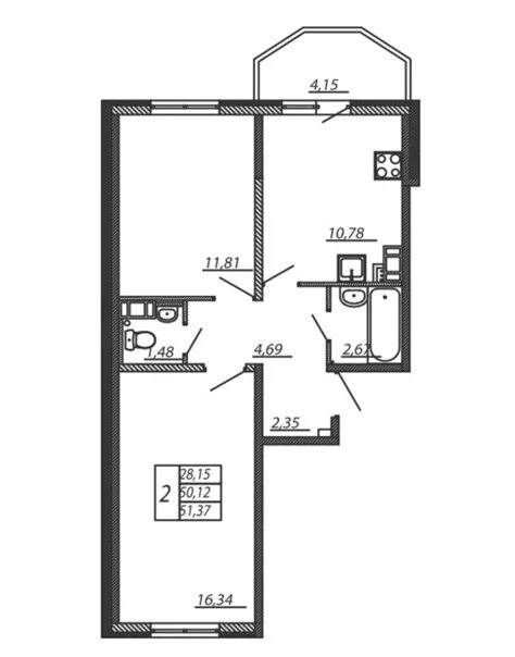
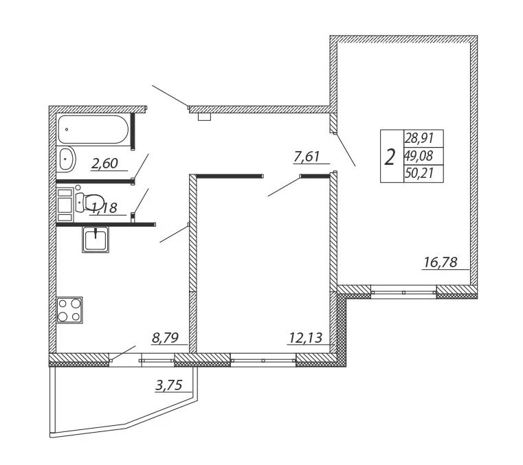
Жк алгоритм