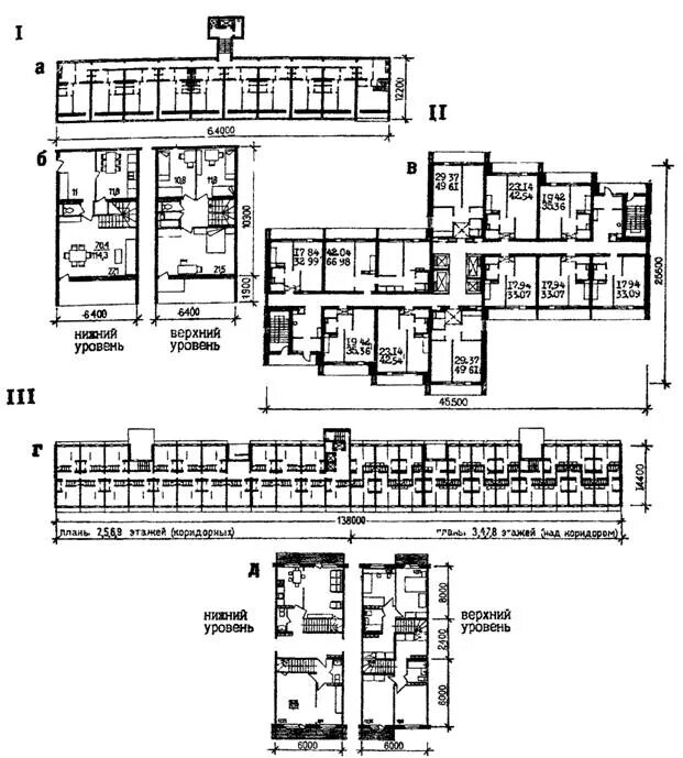
Здания коридорного типа