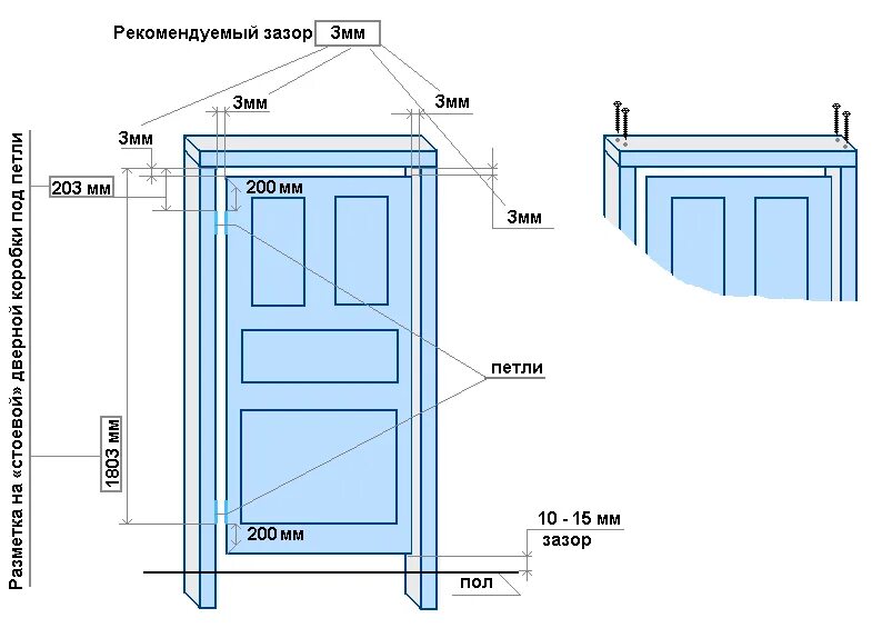
Зазор между дверью и дверной коробкой