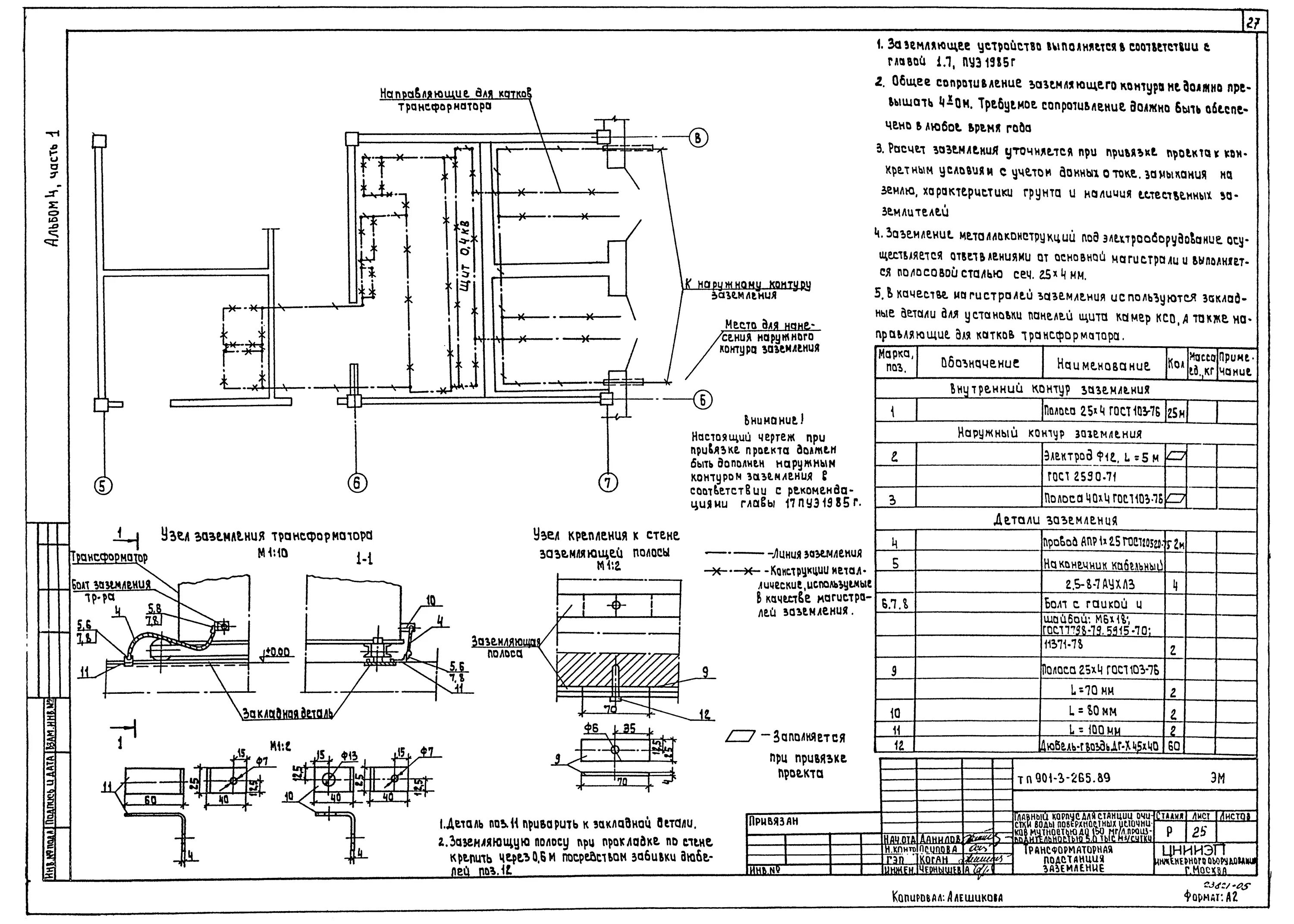
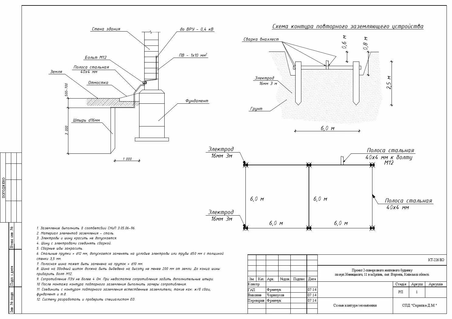
Заземляющие устройства распределительных устройств