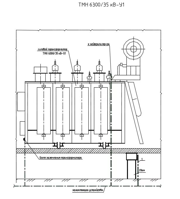
Заземляющие устройства нейтралей трансформаторов