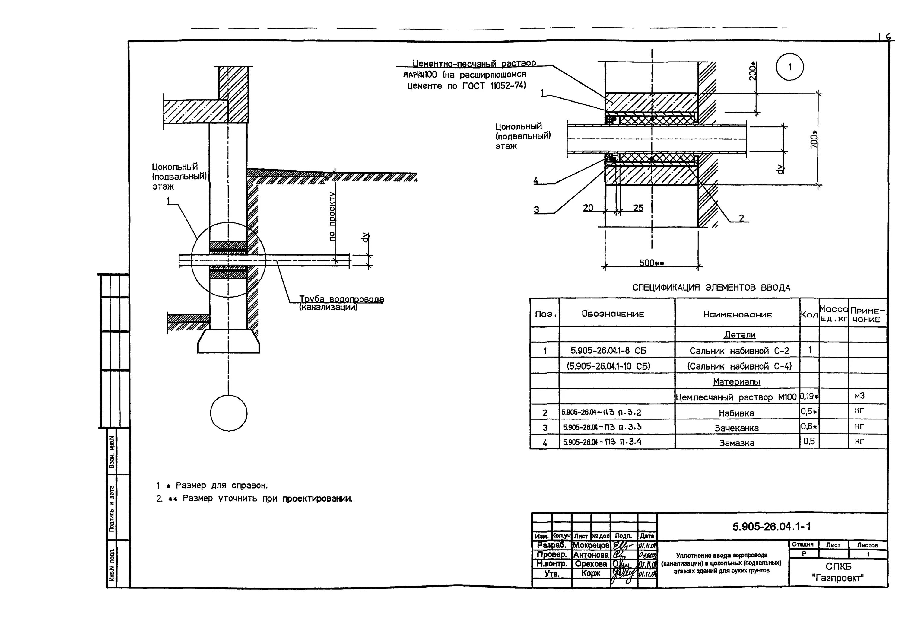
Заделка трубы через фундамент