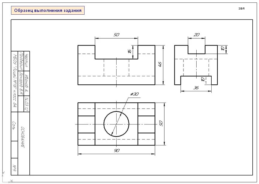
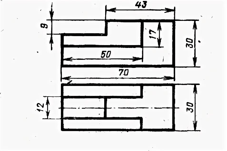
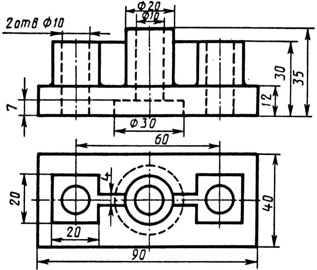
Задания к практической работе 3