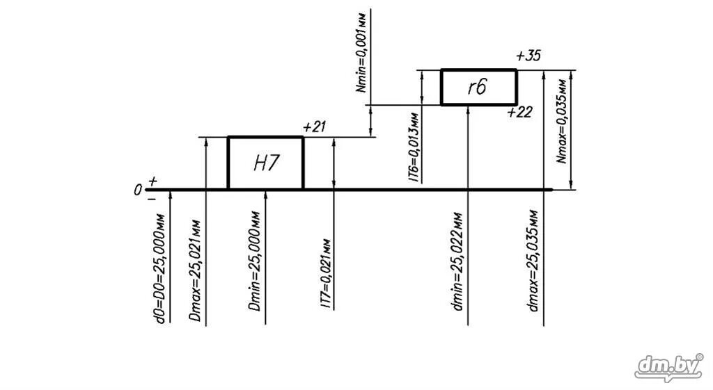
Задание точности c