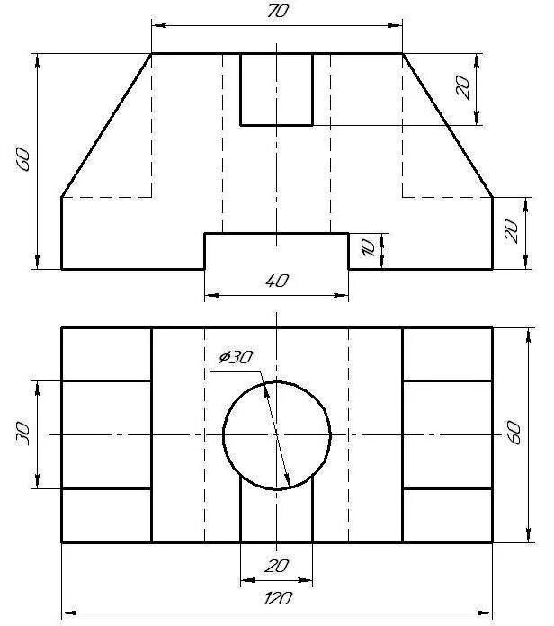
Задание 6 вариант 29