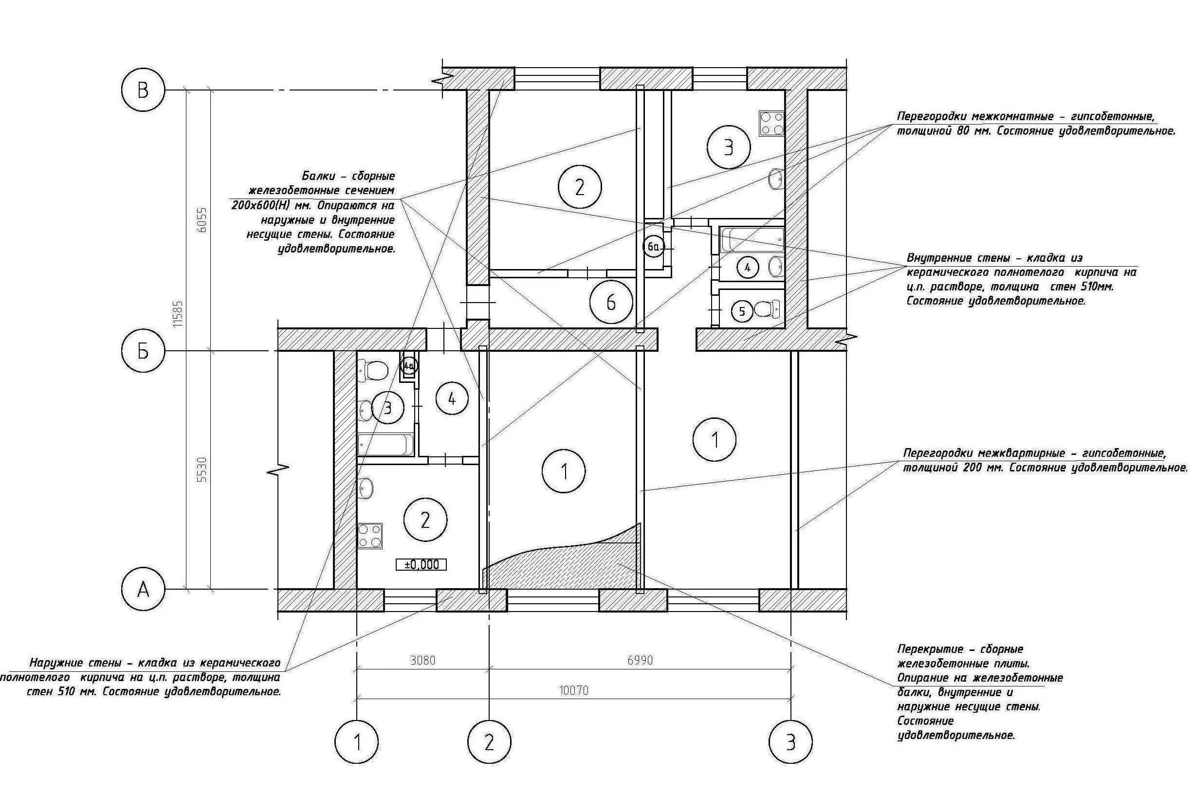
Является ли перегородка