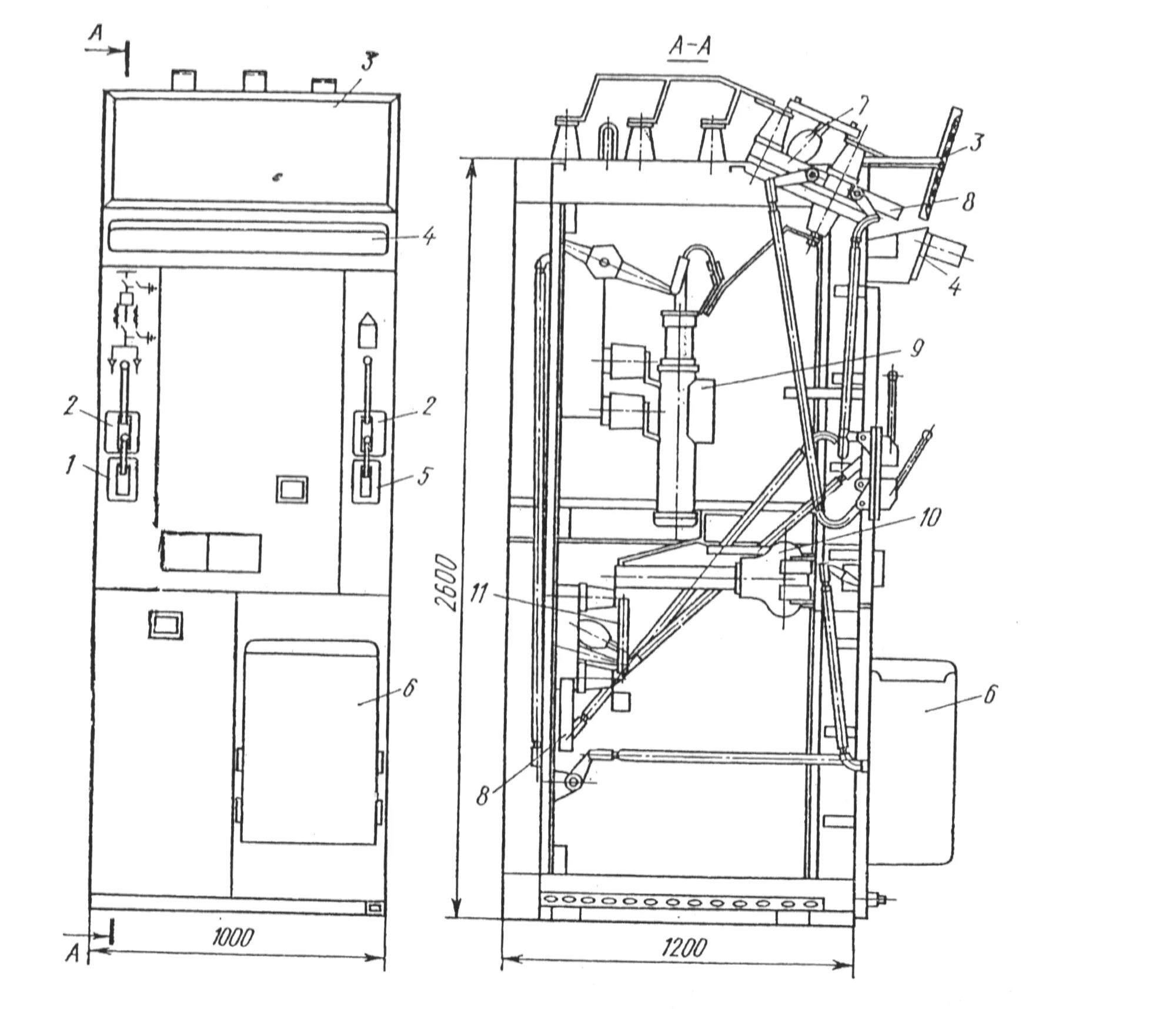
Ячейка разъединителя