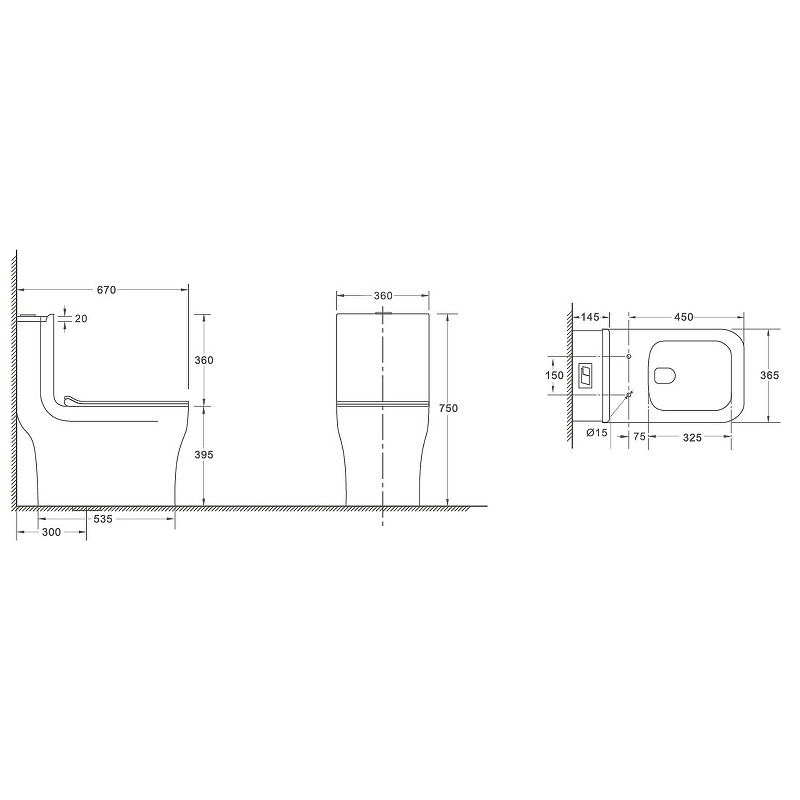
Weltwasser унитазы напольные