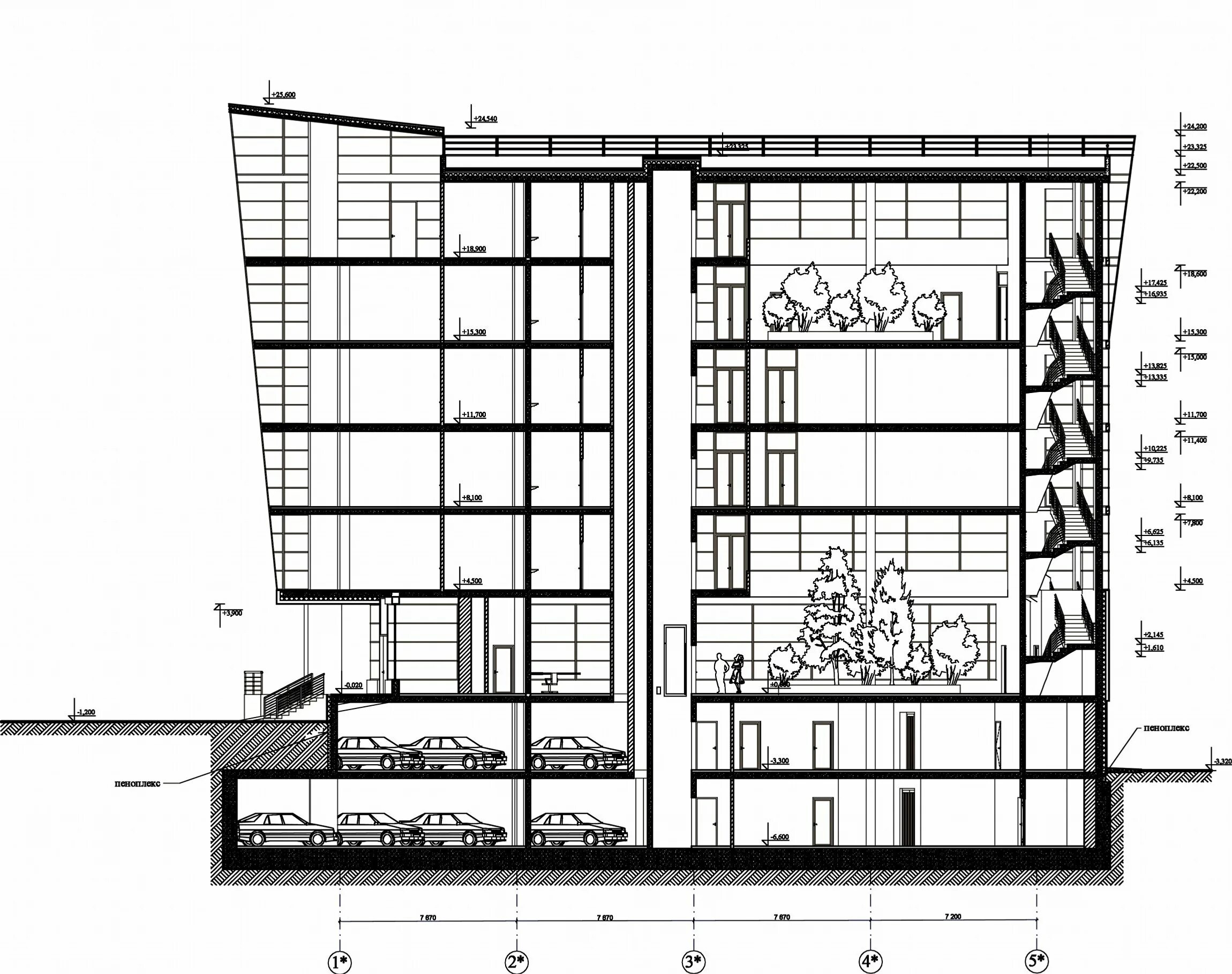
Высота стен общественного здания