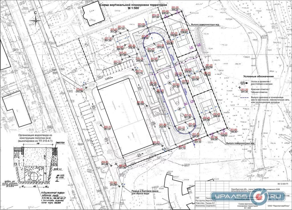
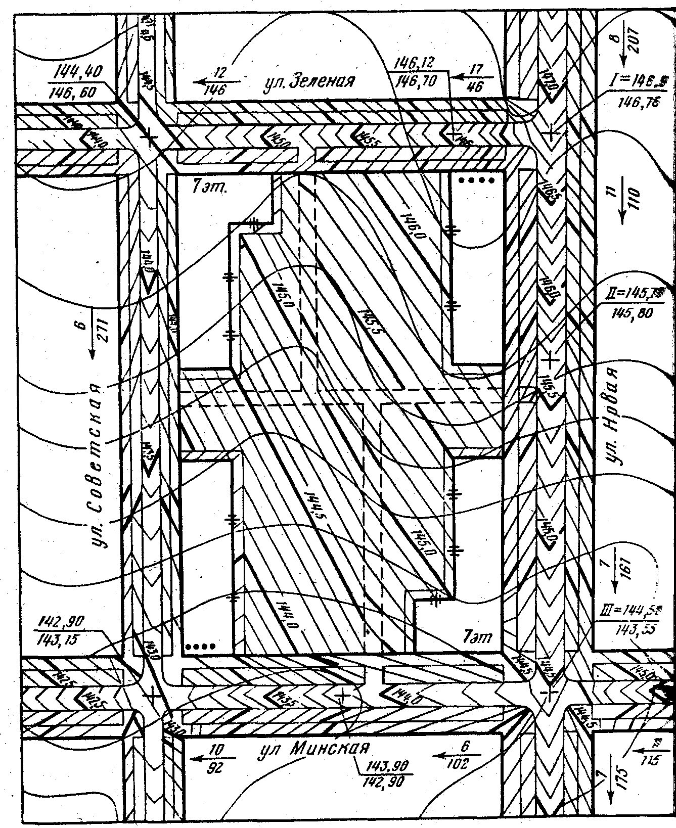
Выполнить вертикальную планировку