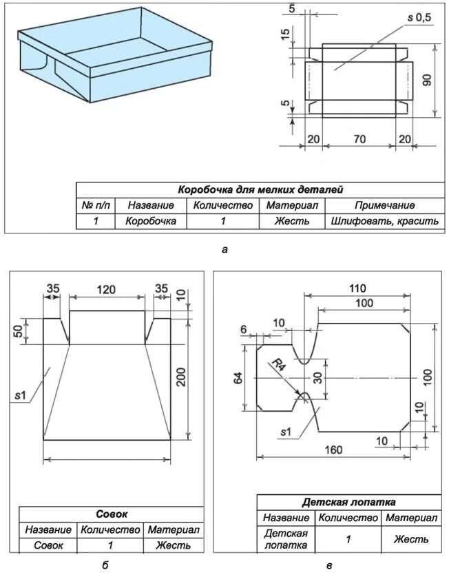
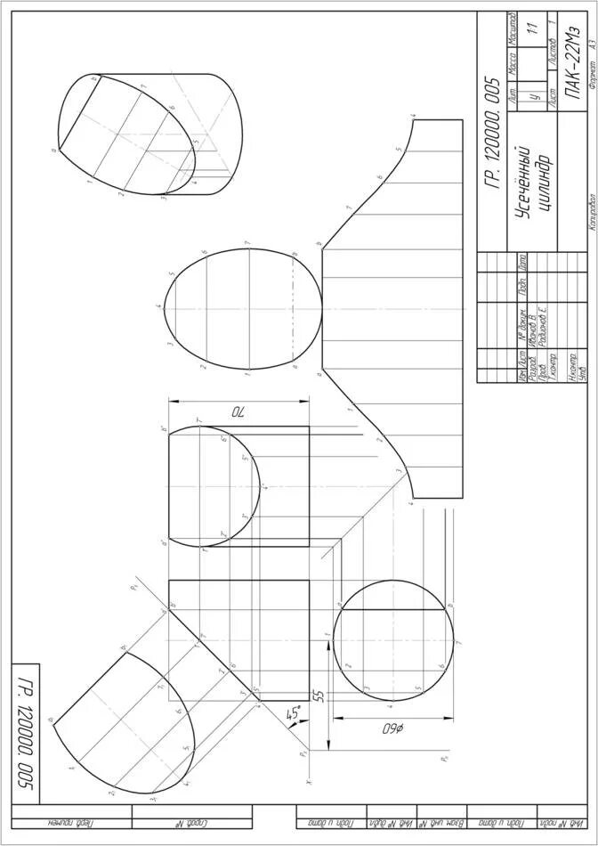
Выполнить чертеж развертки