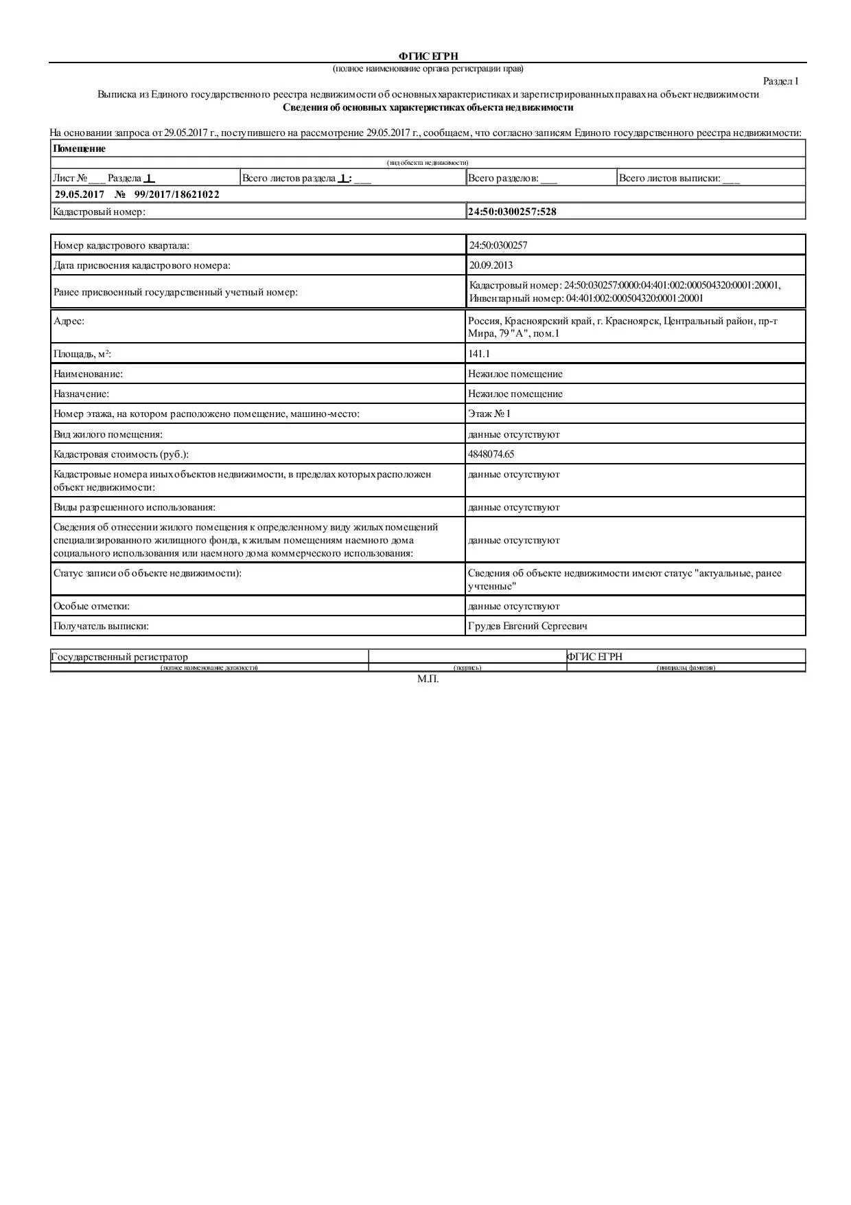
Выписка из егрн о зарегистрированных правах