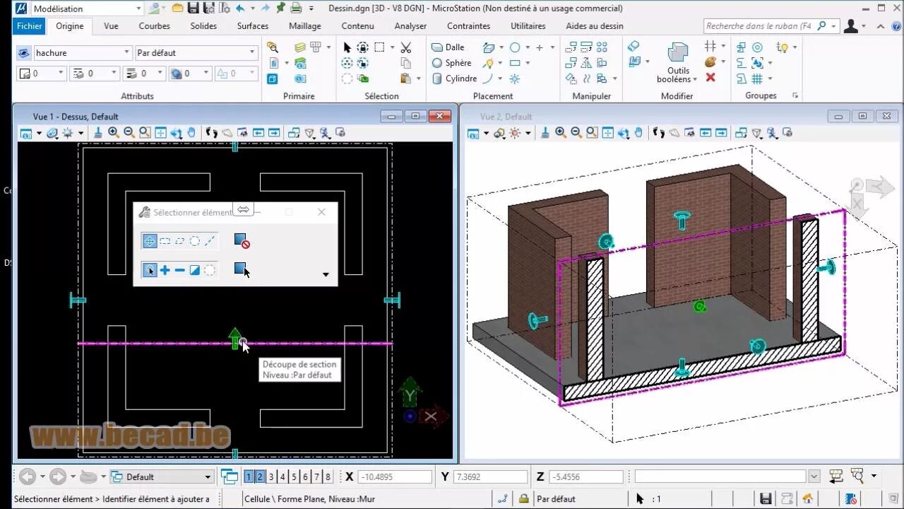
Vue default