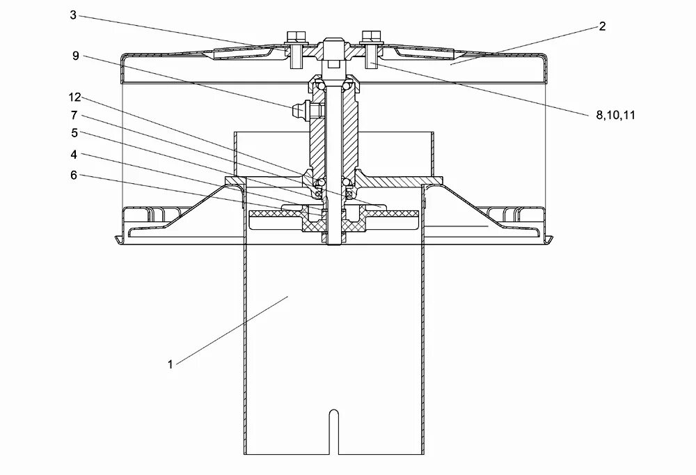
Вращающийся воздухозаборник