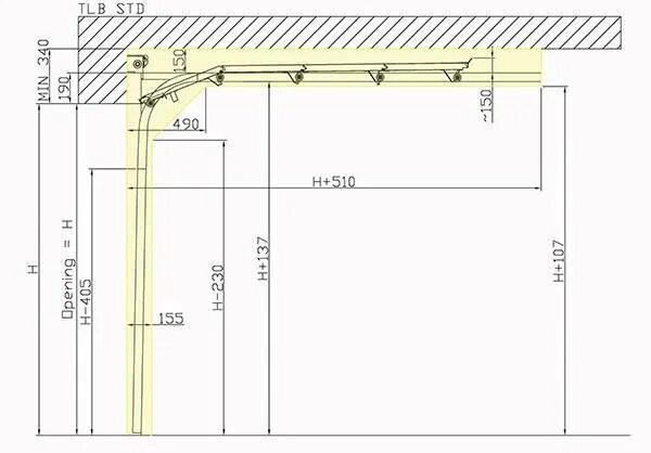
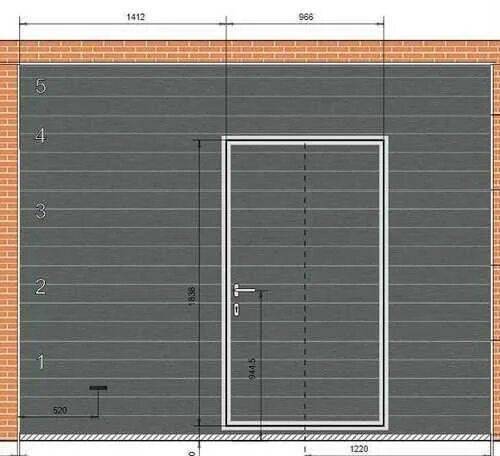
Ворота секционные подъемные с калиткой размеры