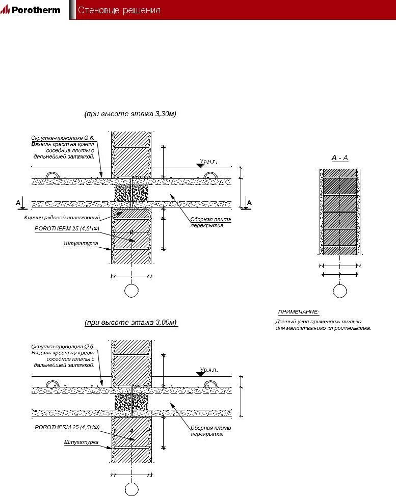
Внутренние несущие стены