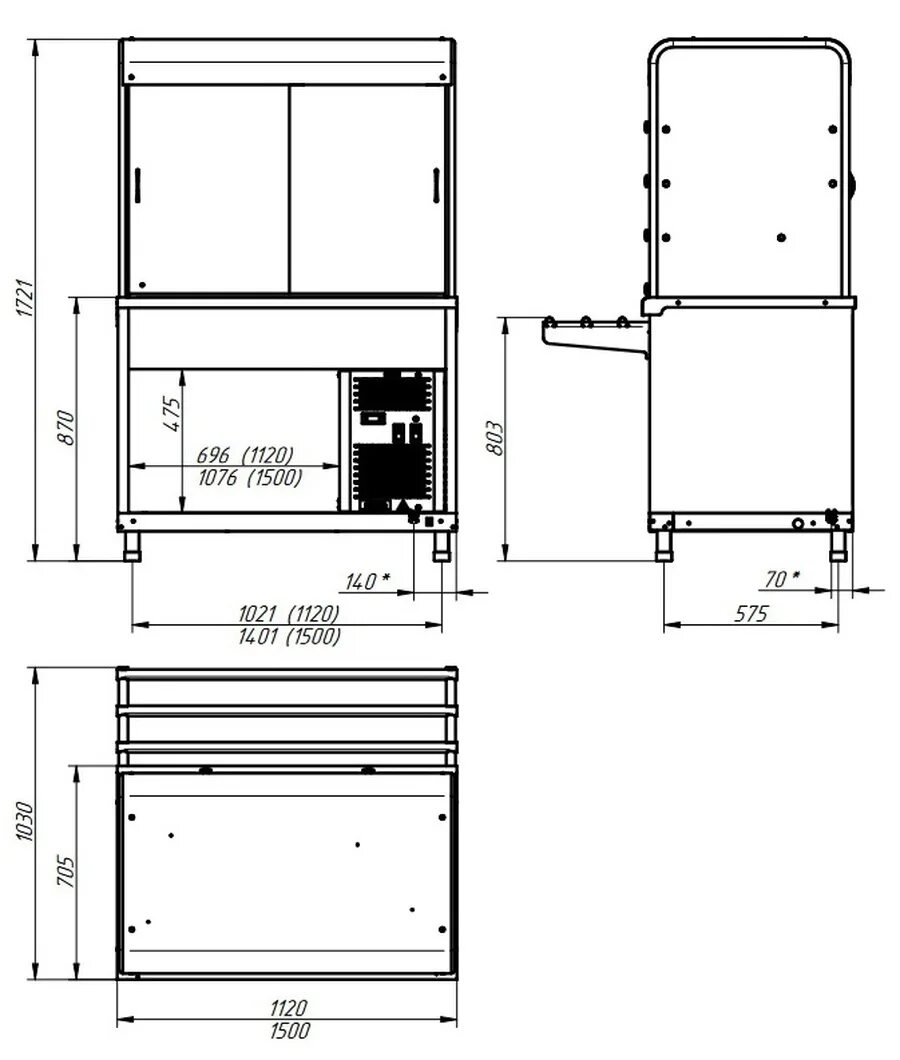
Витрина пвв н 70км с нш