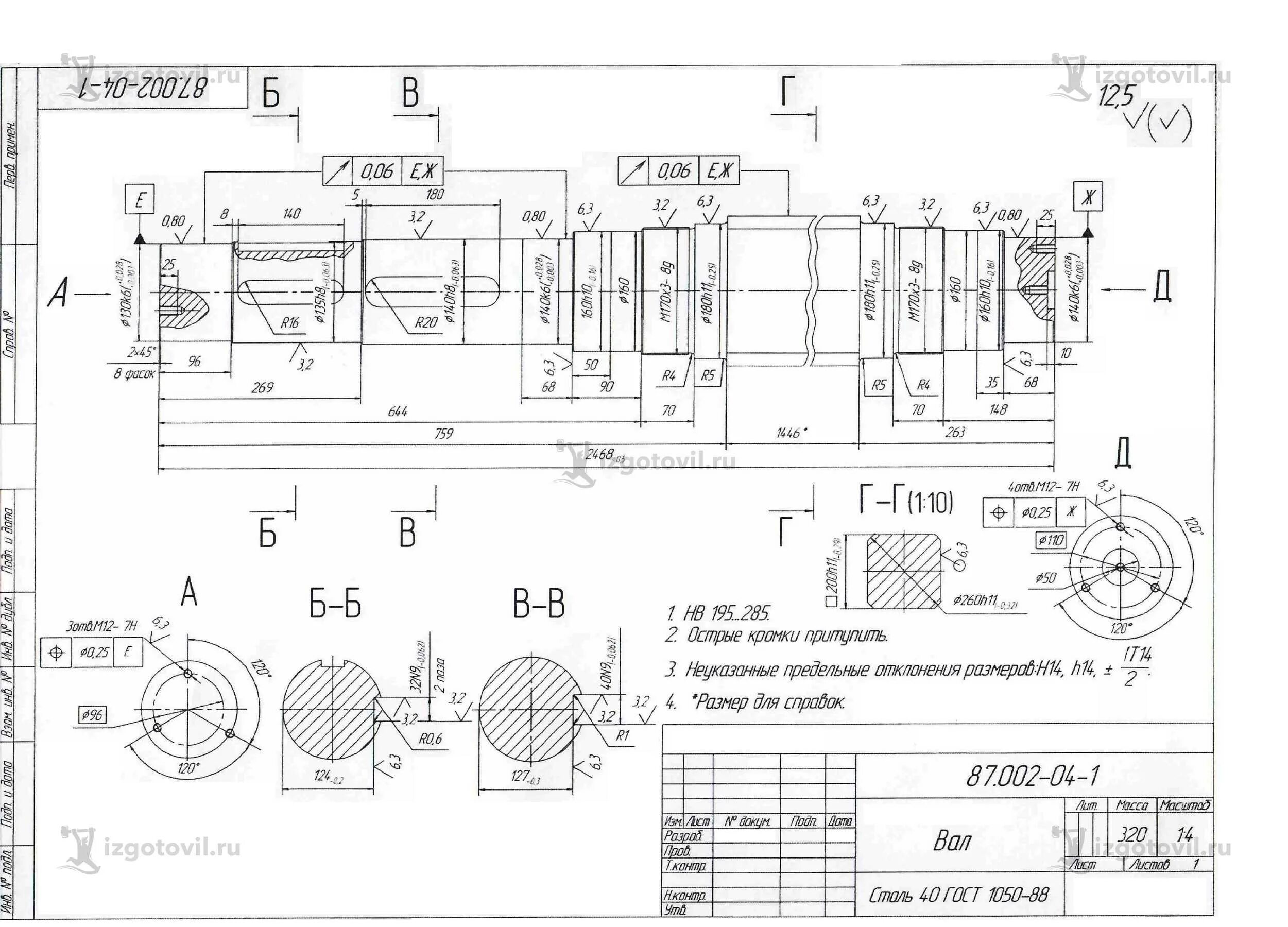
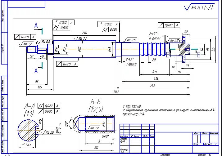
Вал диска