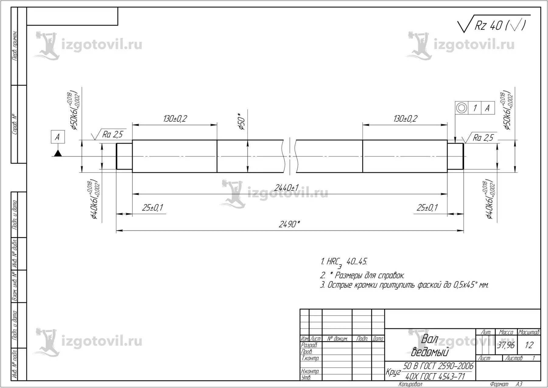
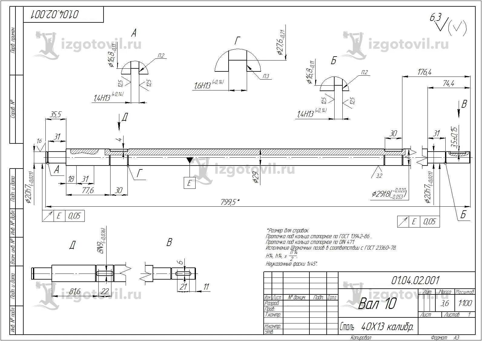
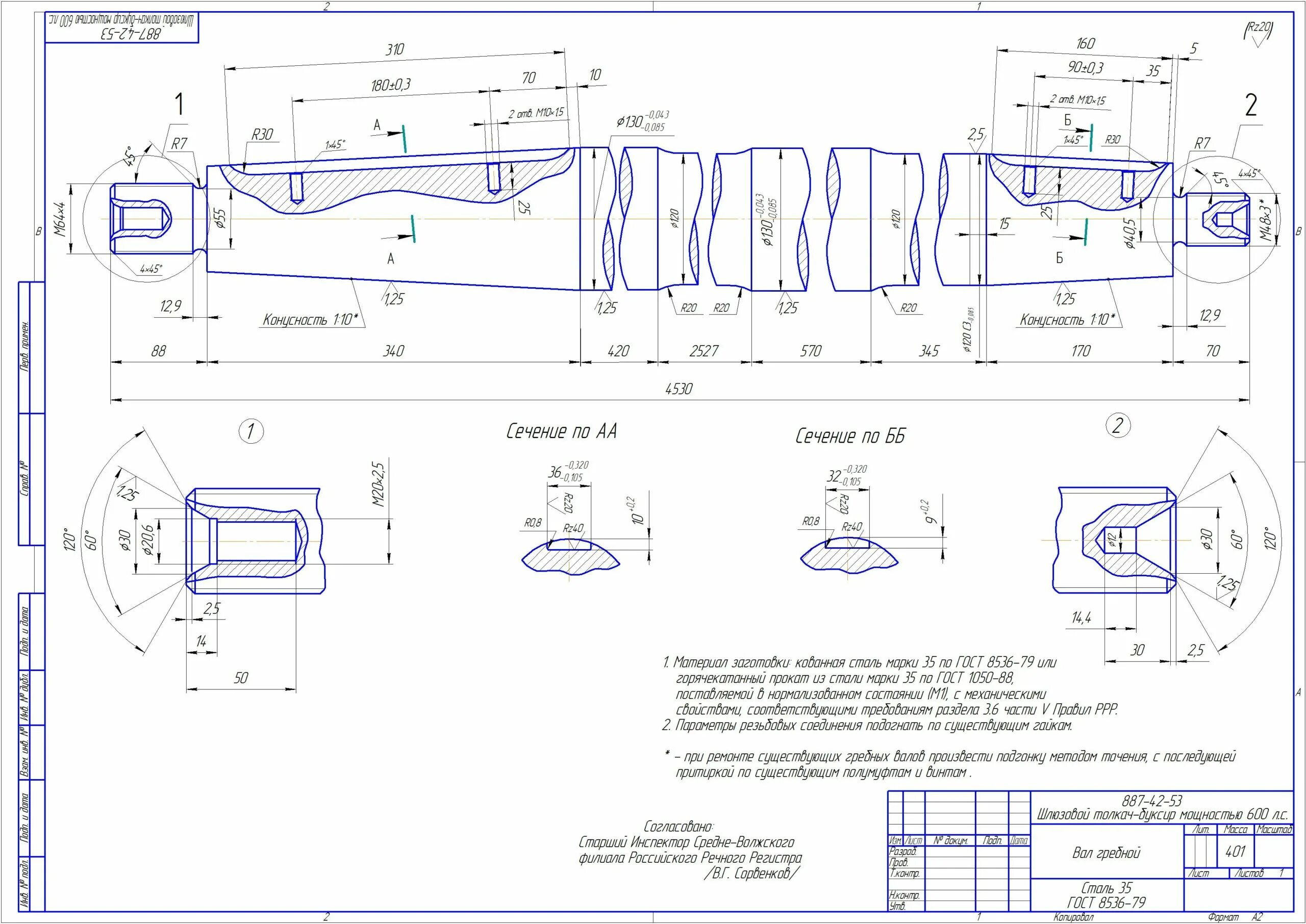
Вал 40х