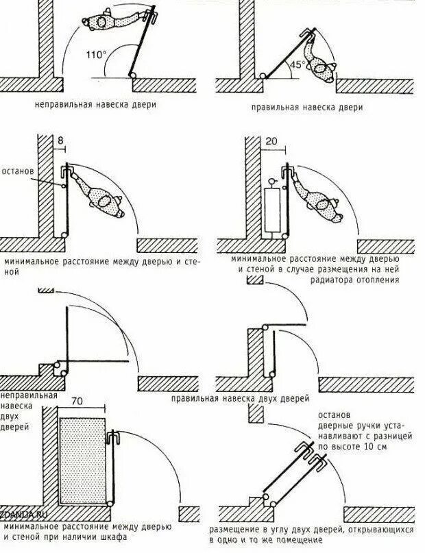
В какую сторону открывается межкомнатная дверь