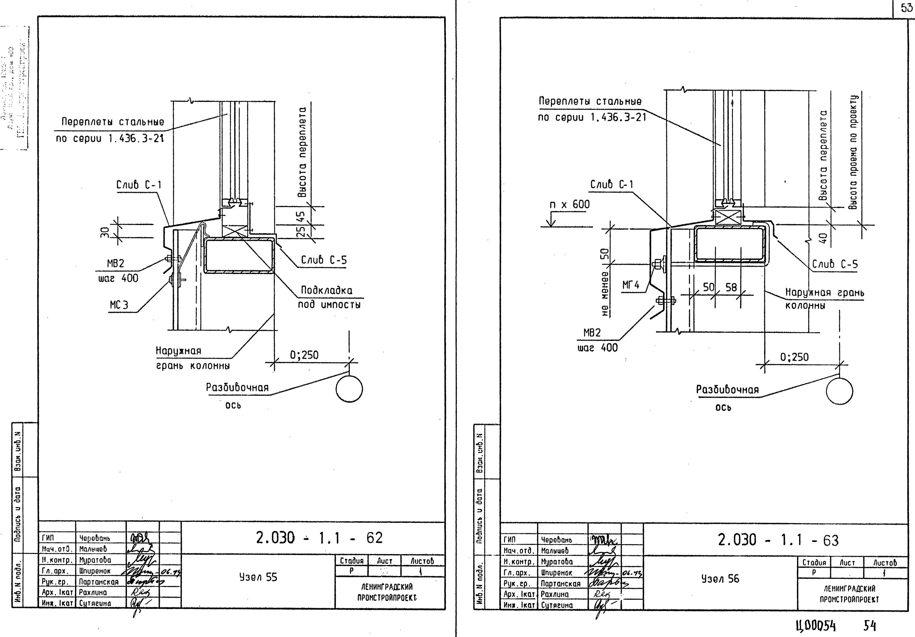
Узлы зданий и сооружений