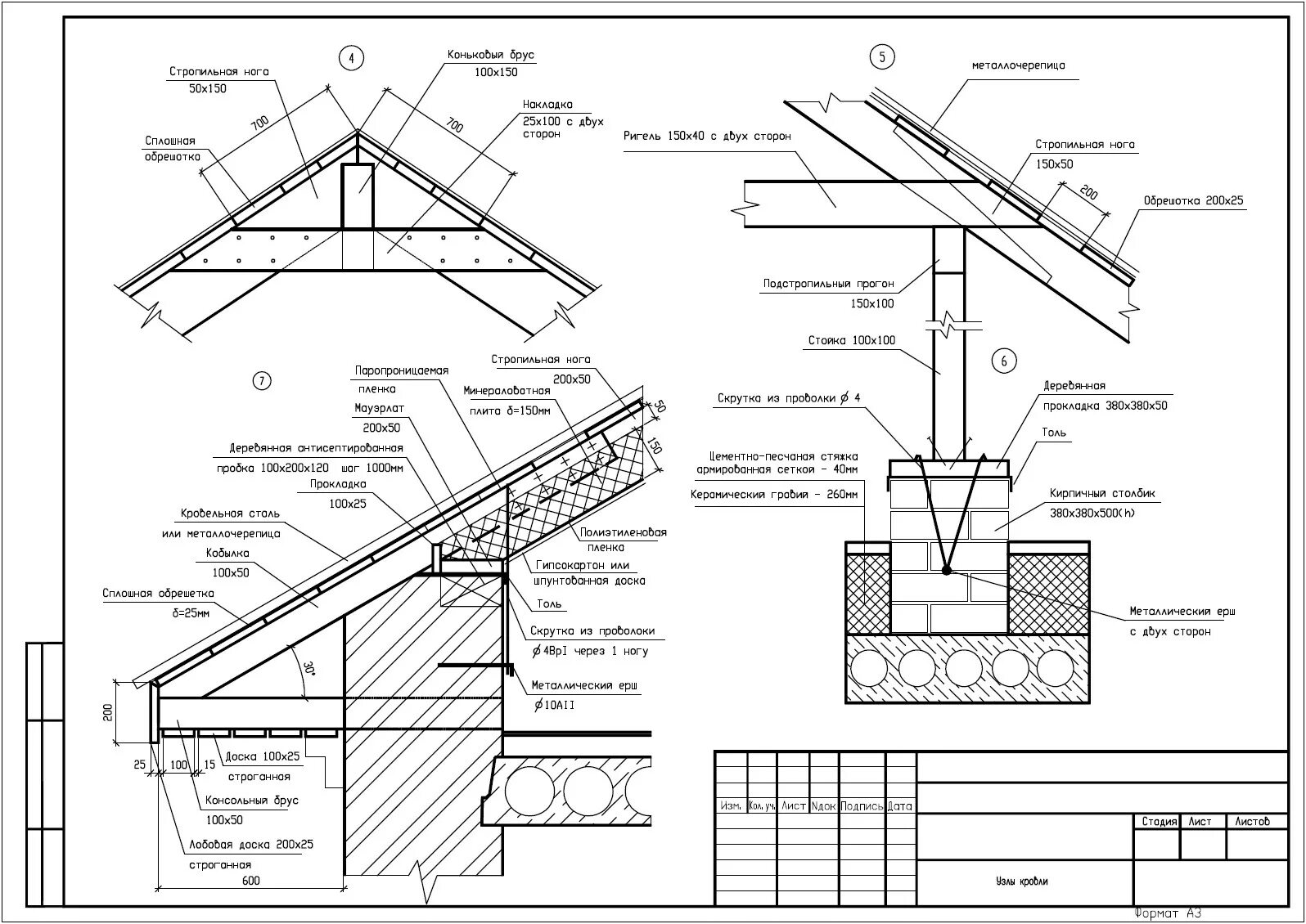
Узлы конструктивных элементов