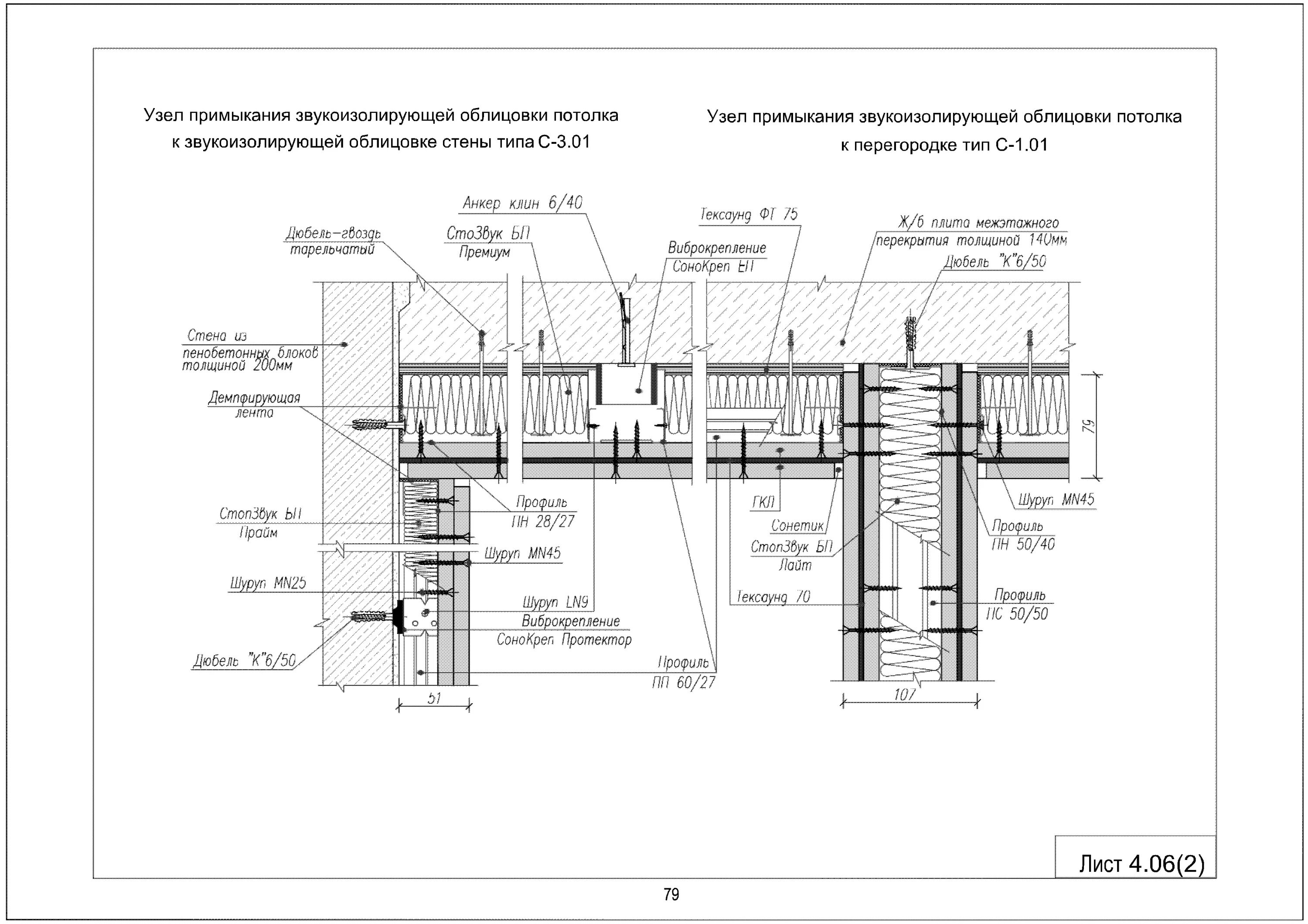
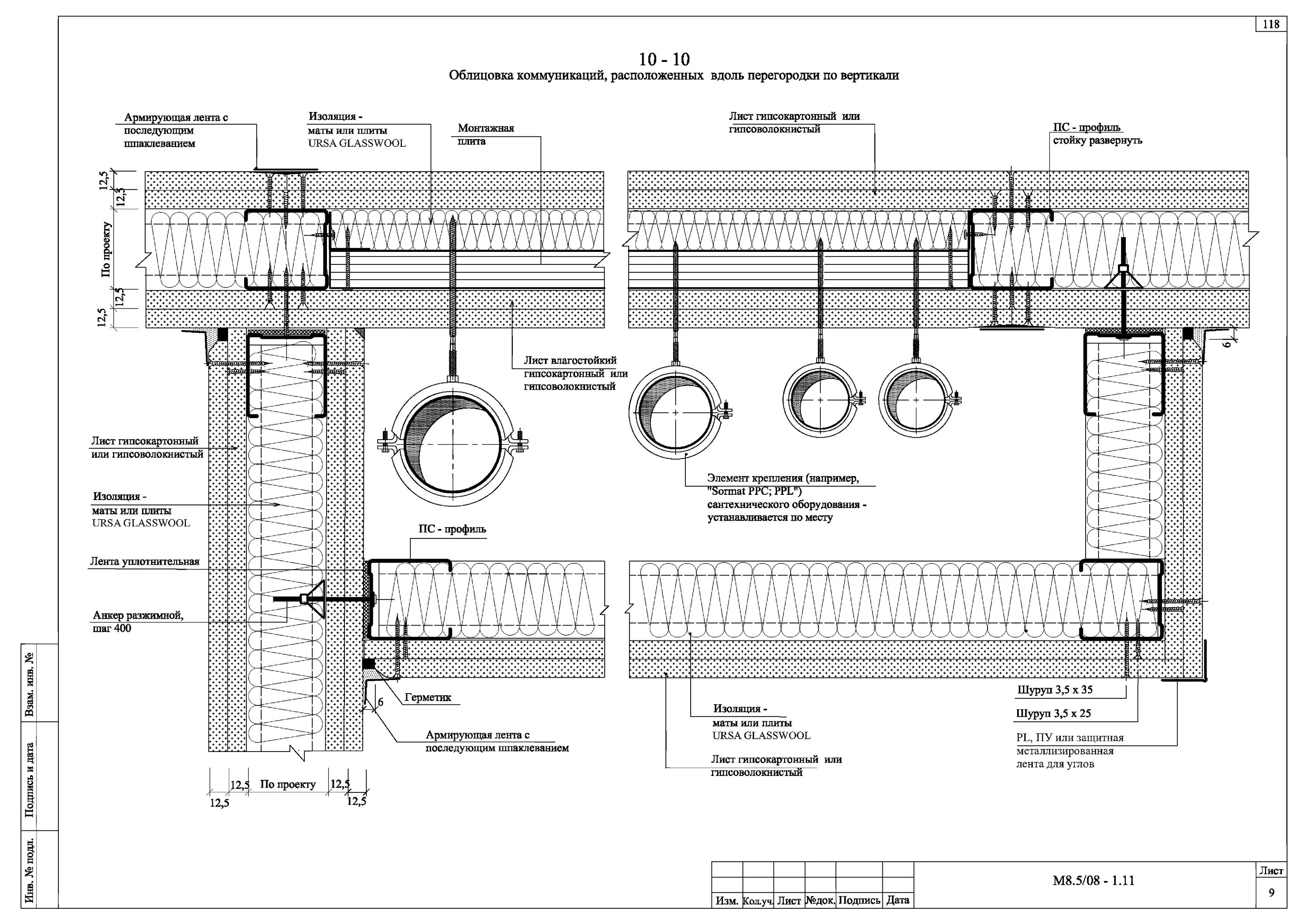
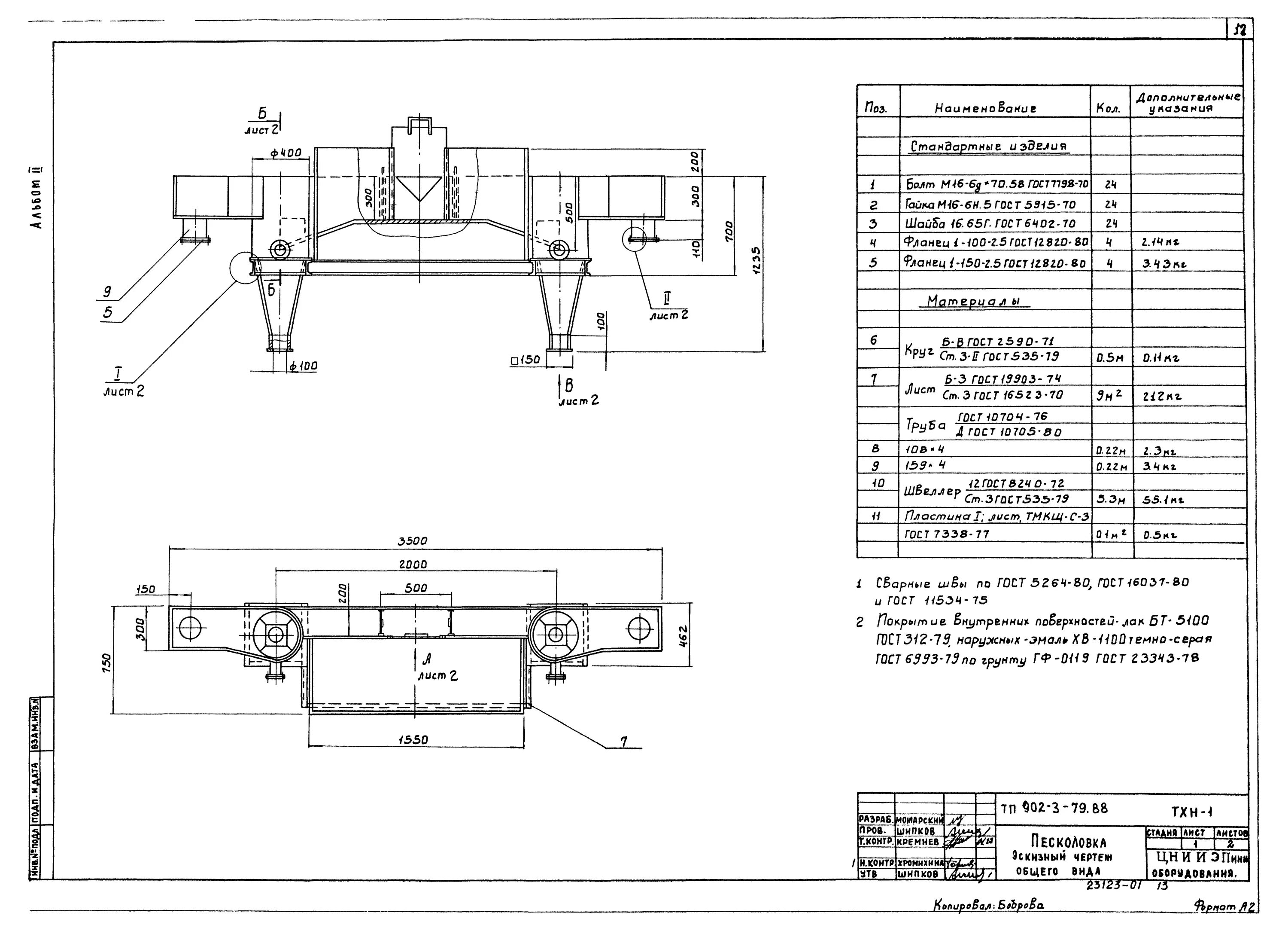
Устройство содержащее технические решения