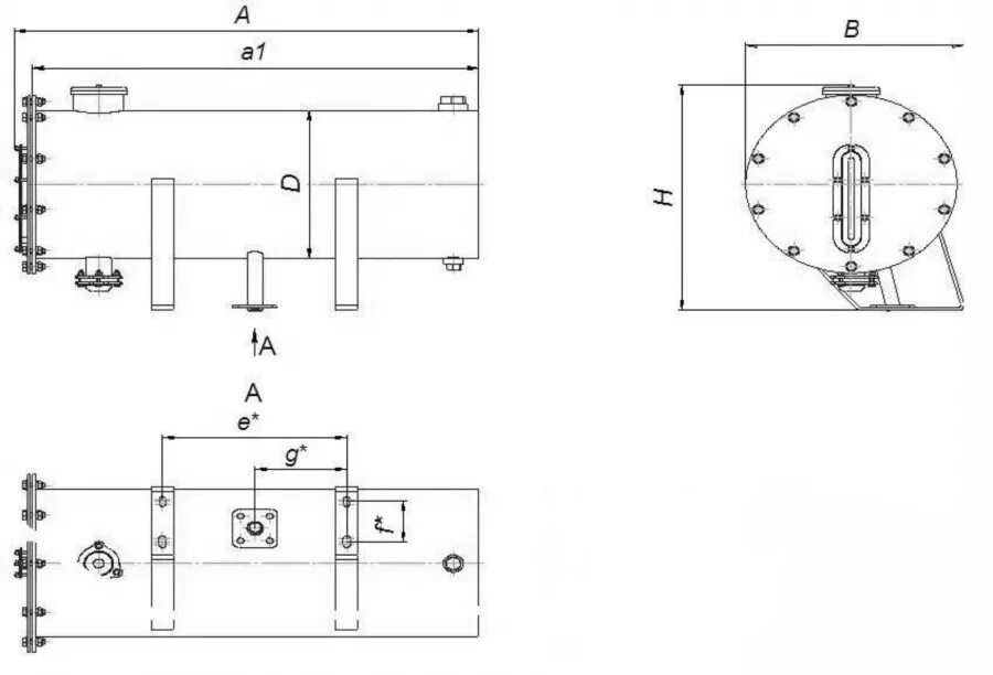
Устройство расширителя трансформатора