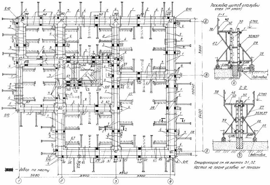
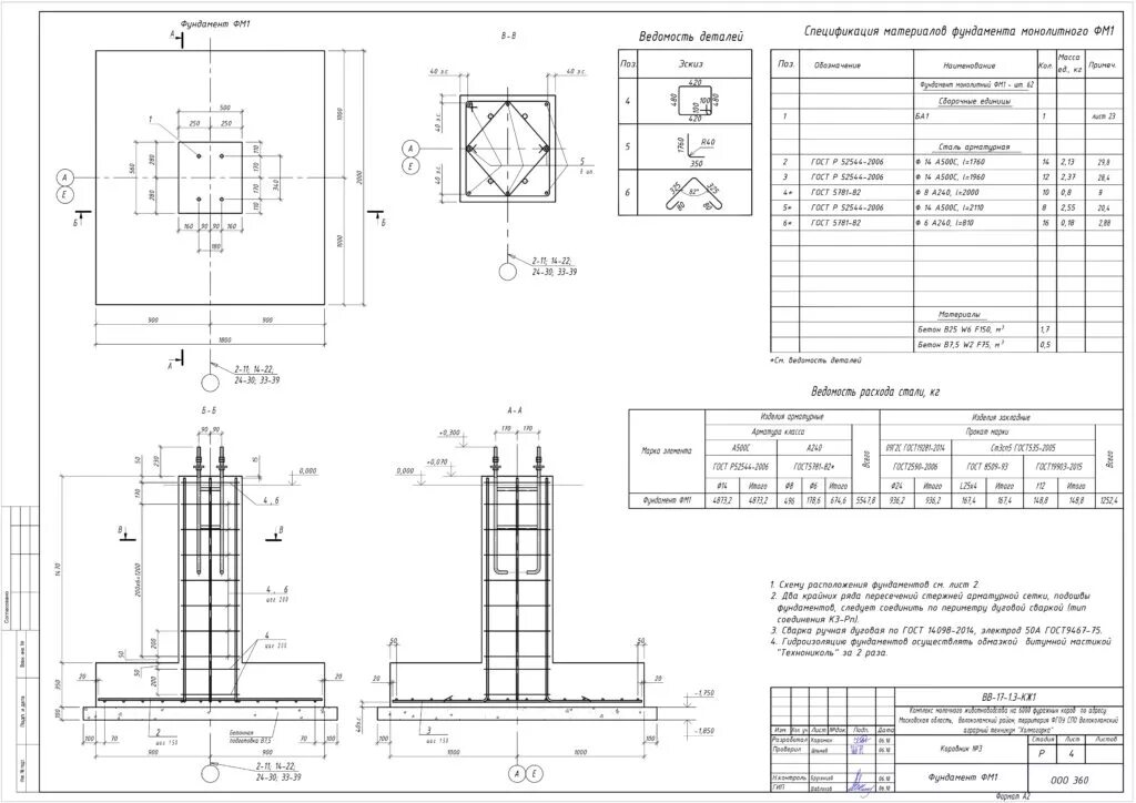
Устройство монолитных колонн