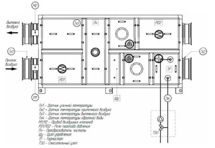
Установки каждая из которых