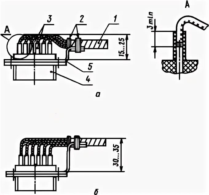
Установка соединителя