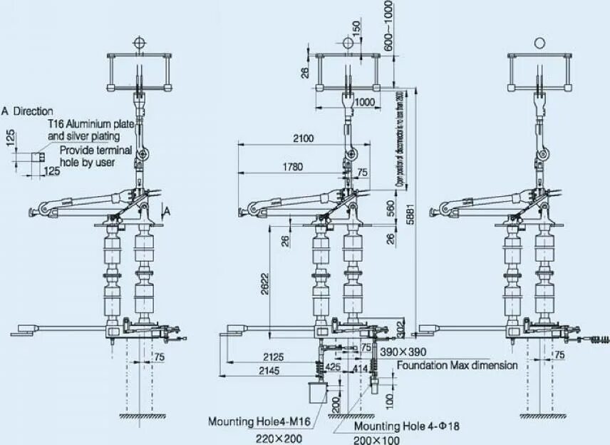
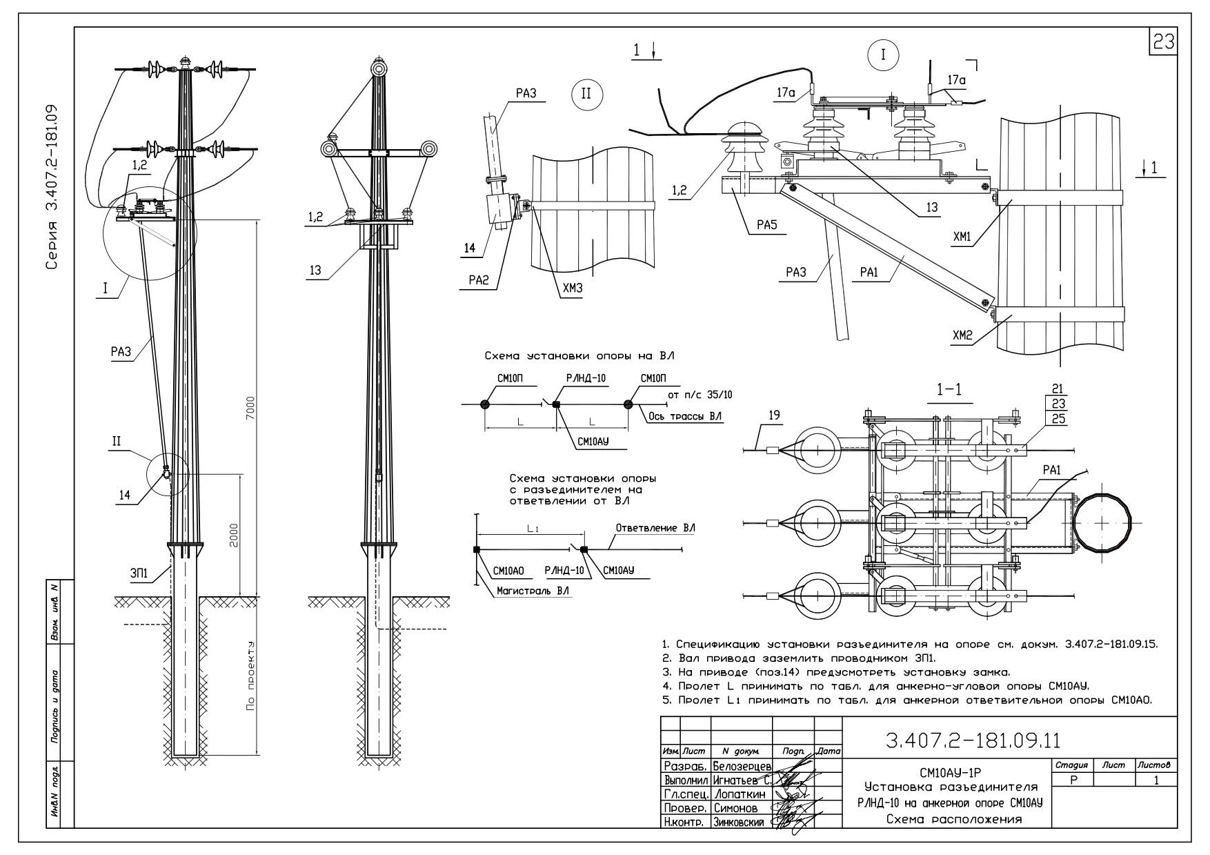
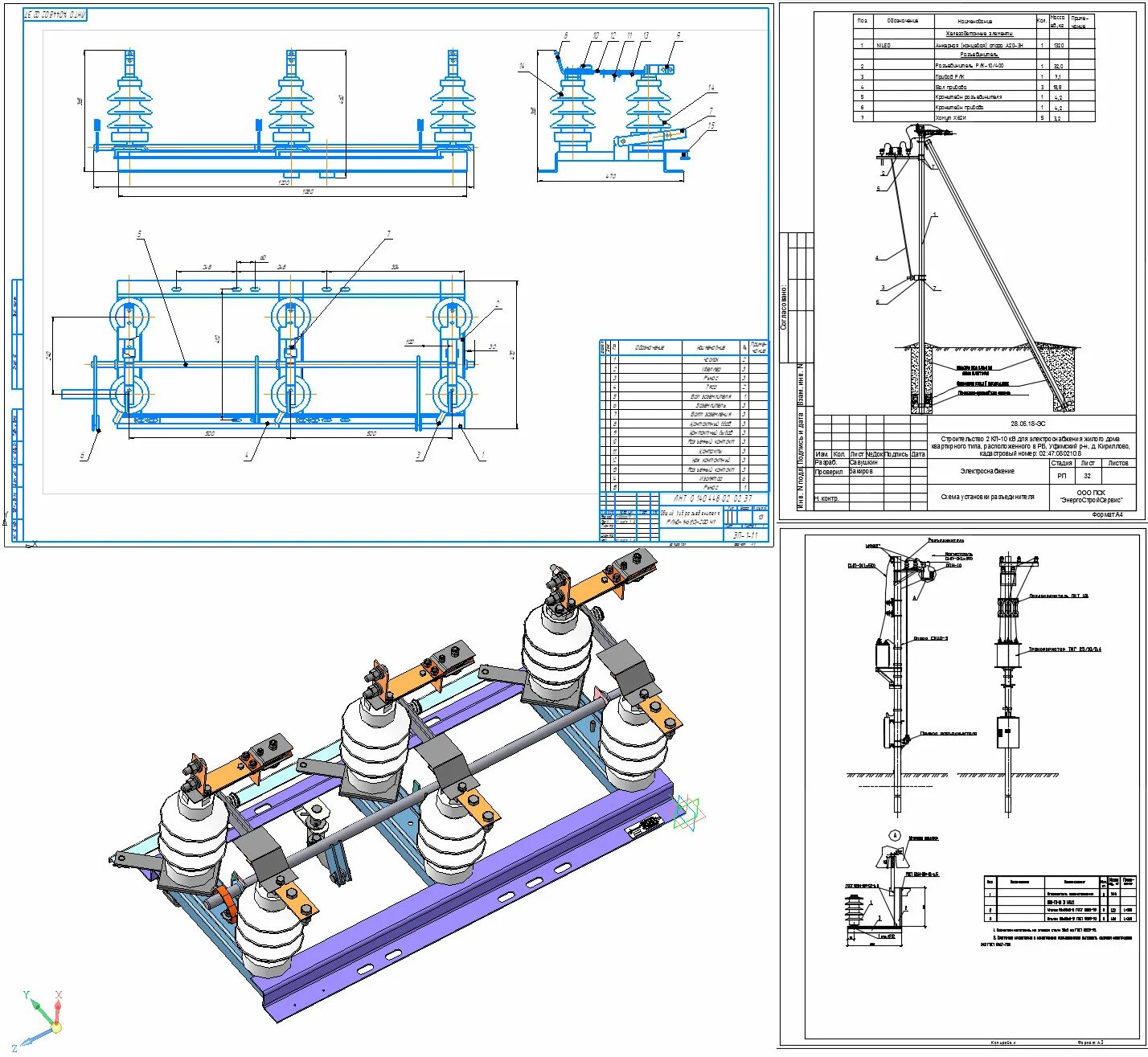
Установка разъединителя рлнд 10