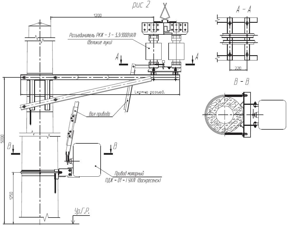
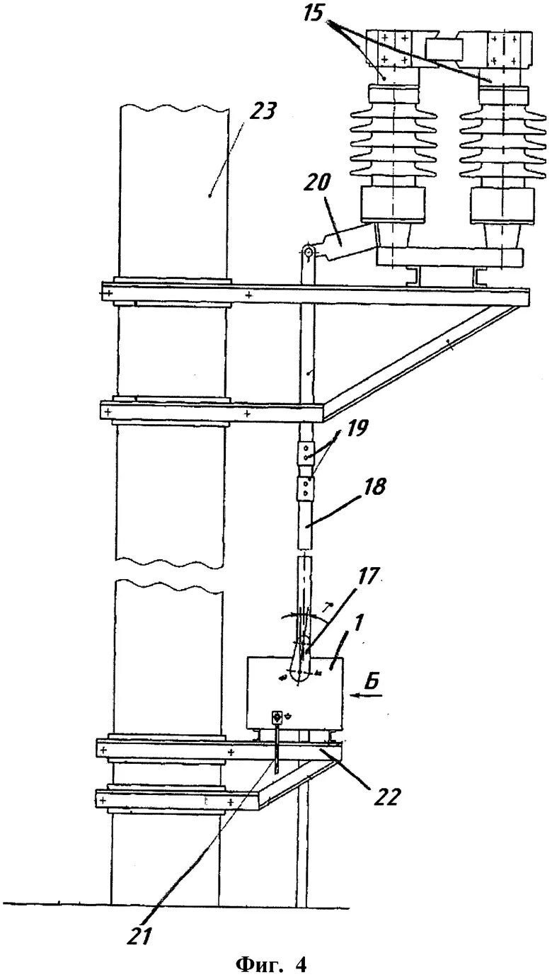
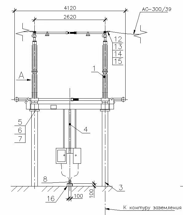
Установка привода разъединителя