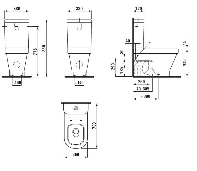
Установка напольного унитаза