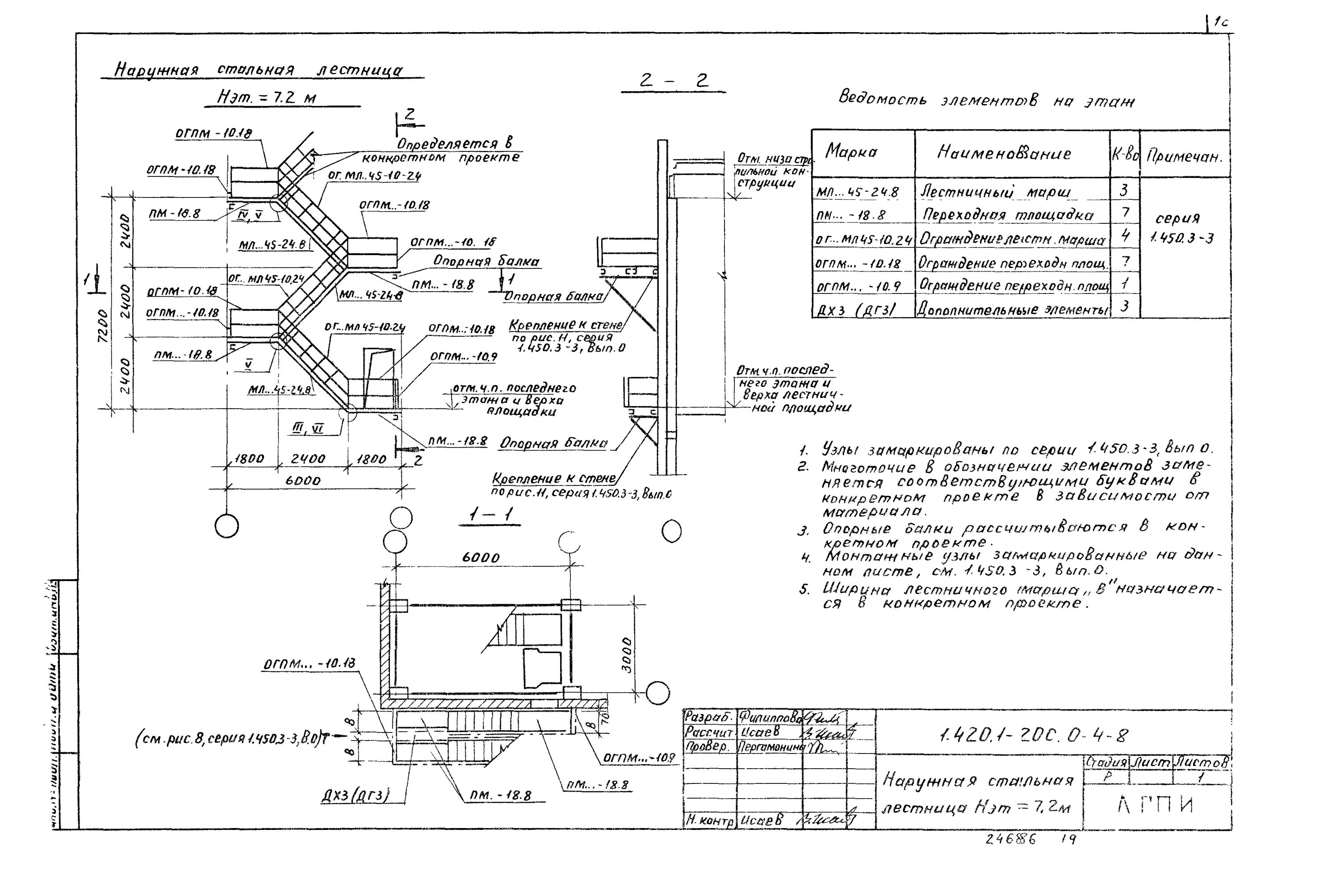
Установка лестничных маршей