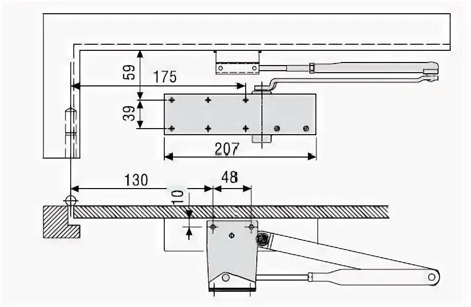
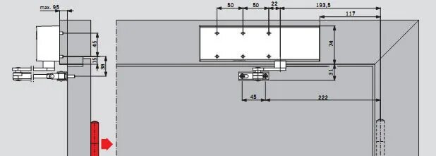
Установить доводчик открывается наружу