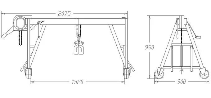
Укажите обозначение путевых вагончиков съемных портальных кранов