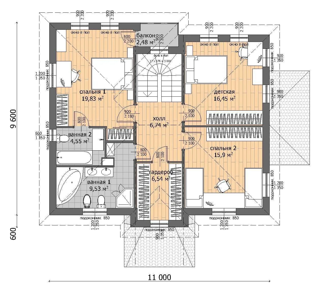
Удачный проект пример