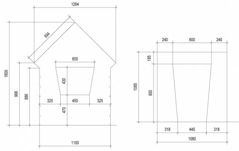
Туалет чертеж с размерами деревянный для дачи