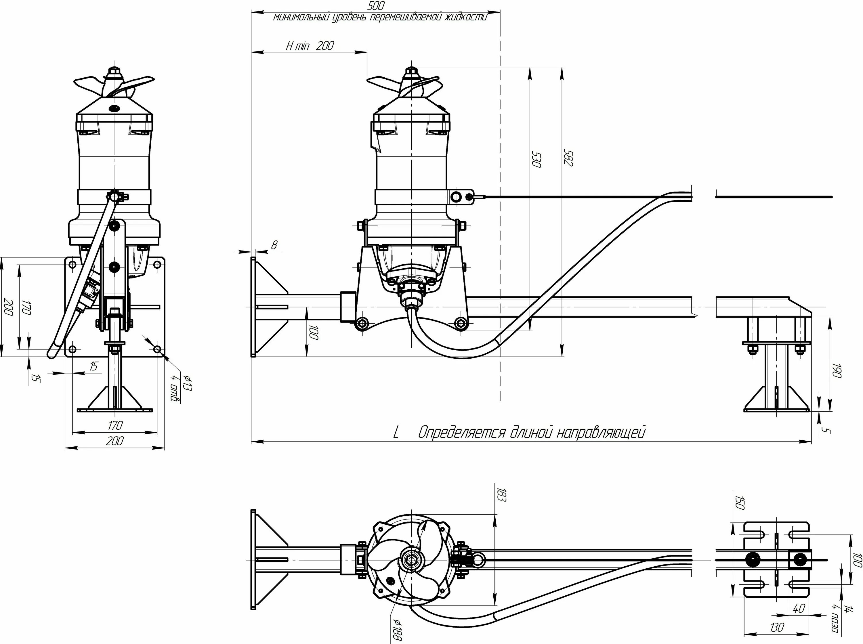
Ту на погружную мешалку wilo flumen