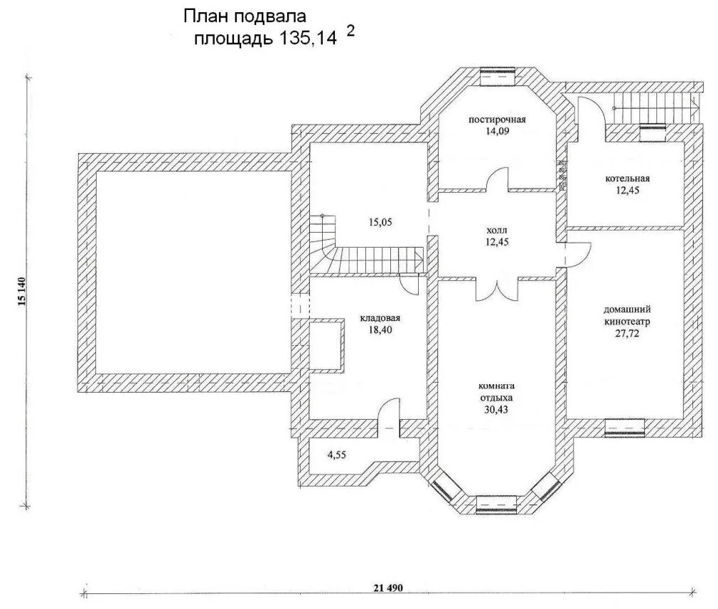
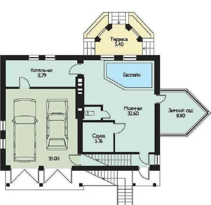
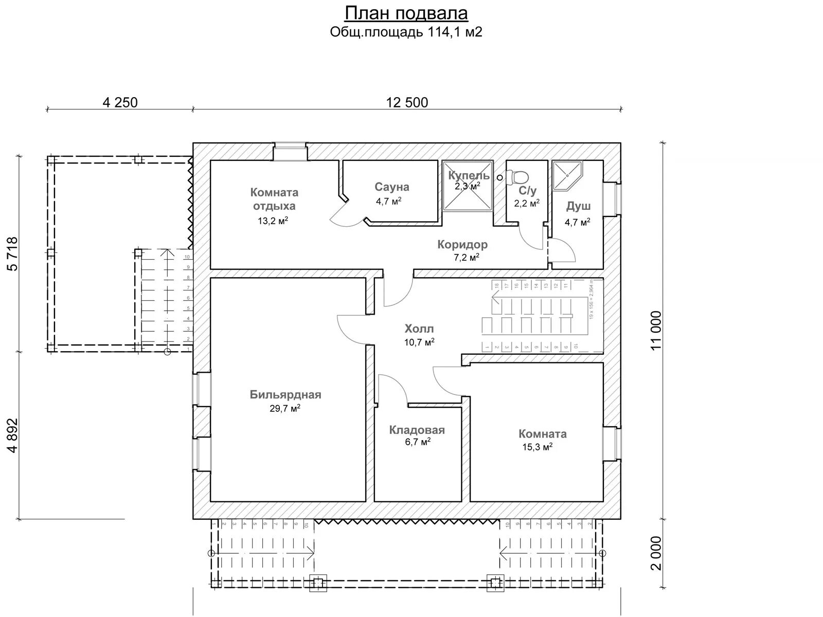
Цокольный этаж площадь дома