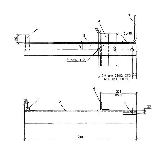
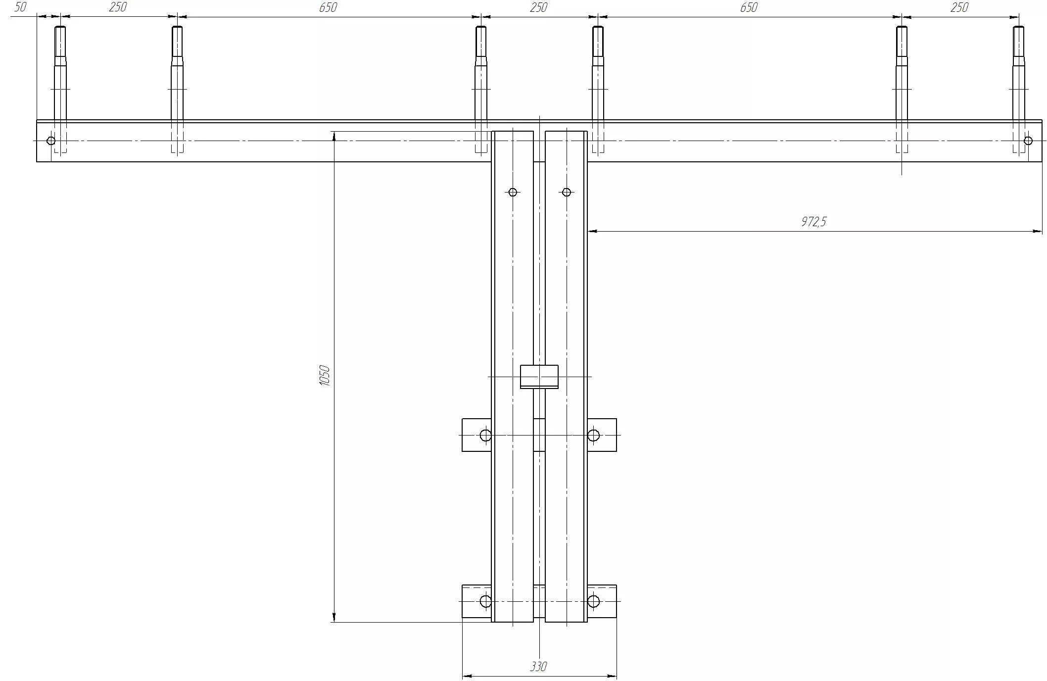
Траверса тм8