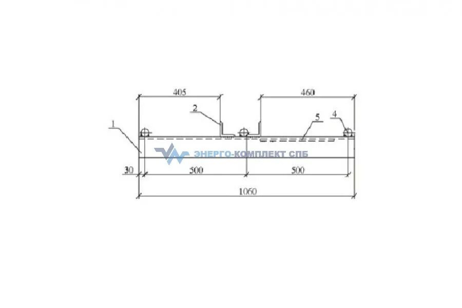
Траверса тм65