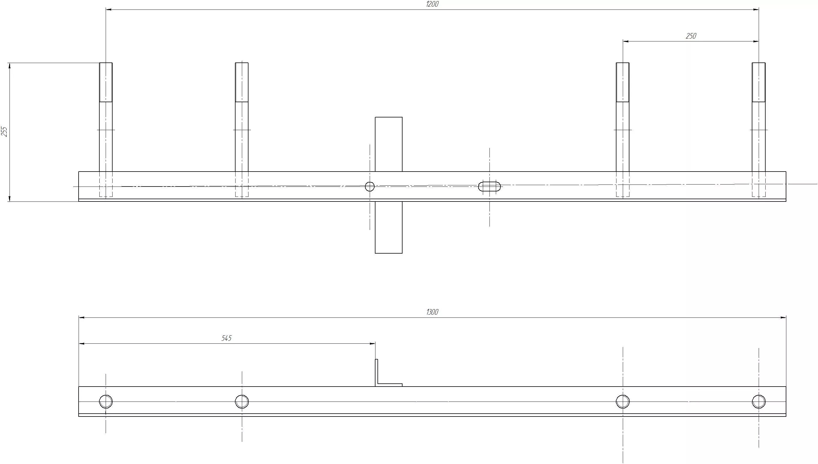
Траверса тм3