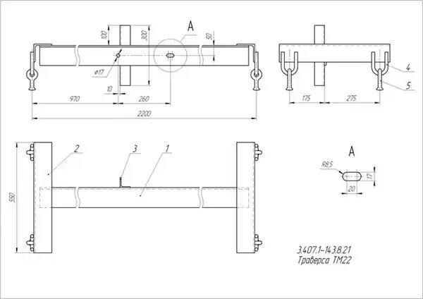
Траверса тм 22