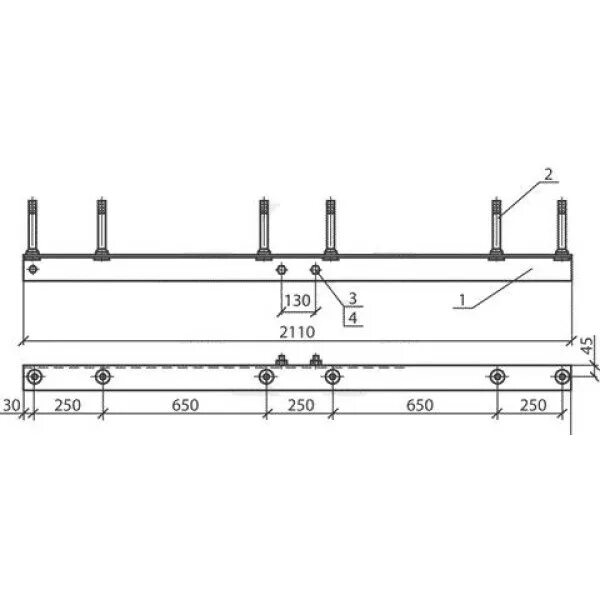
Траверса 1 2 2