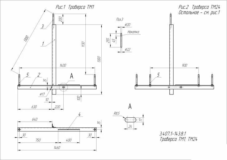
Траверс тм 3